Aller au contenu principal
Retour à la recherche

Maison 5 pièces, 86 m2

Réf. : VM2935-14097
Dernière mise à jour de l’annonce : 16/10/2025

Vente

323 900 € (Honoraires de négociation inclus)
310 000 € (Prix net vendeur)
Montant des honoraires : 13 900 €
Pourcentage des honoraires : 4 %
Honoraires à la charge de l'acquéreur
14130 Pont-l'Évêque
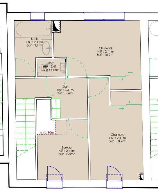
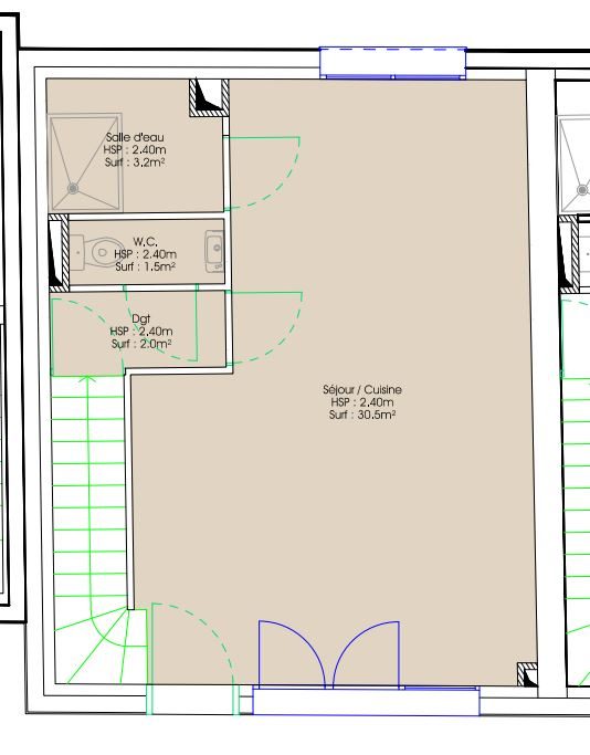
Maison lot 5 : Composée : Au rez-de-chaussée : séjour, cuisine ouverte, cellier, WC séparés, dégagement Au 1er étage : palier, chambre 1, chambre 2, bureau, salle d’eau, WC séparés. Combles : palier, une chambre mansardée et salle de bains. Garage en sous-sol et buanderie. Sur cour de 26.27 m². Parcelle, environ 107 m². Au prix de (honoraires de négociation inclus) : 323 900€ Clefs en main : 330 939€ Les informations sur les risques auxquels ce bien est exposé sont disponibles sur le site Géorisques : georisques.gouv.fr

Général

Nombre de pièces : 5
Nombre de chambres : 3
Surface :  86 m2
Surface Carrez :  86 m2
Superficie : 26 m2
Etat : Neuf
Nombre de niveaux : 1

Bilan énergétique

Date du diagnostic :  18-08-2025
DPE
Logement économe
42 kwh/m²/an
Logement énergivore
GES
Faible émission de GES
1 kg CO₂/m²/an
Forte émission de GES

Depuis le 1er juillet 2021, c’est la plus mauvaise des deux performances (DPE ou GES) qui est retenue au final.

Équipements

Nombre de salles de bain : 1
Cuisine : Oui
Stationnement : Oui

Conditions de vente

Prix HNI :  323 900 €
(honoraires de négociation inclus)
Prix net vendeur :  310 000 €
Honoraires :  13 900 € (Montant des honoraires de négociation)
Pourcentage d'honoraires :  4 %
Type d'honoraires :  À la charge de l'acquéreur

Contact

Adresse : 42 Rue Hamelin
Code postal :  14130
Ville :  PONT L EVEQUE